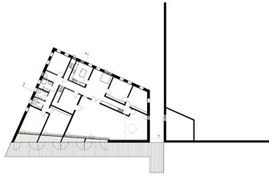
Intern gruppieren sich die verschiedenen Räume für die Gemeindearbeit auf drei Seiten um den großen Saal herum. Sie sind in ihren Funktionen zum Teil austauschbar. Das Pastorat im Obergeschoss besitzt eine eigenen Zugang von aussen.
 
 
 
 
 
 
 
 
                                                           
Um zu Zoomen, bitte Clicken!